Ndërtimi i Arkivës së re Qendrore të DPSHTRR, në Durrës.

You are here

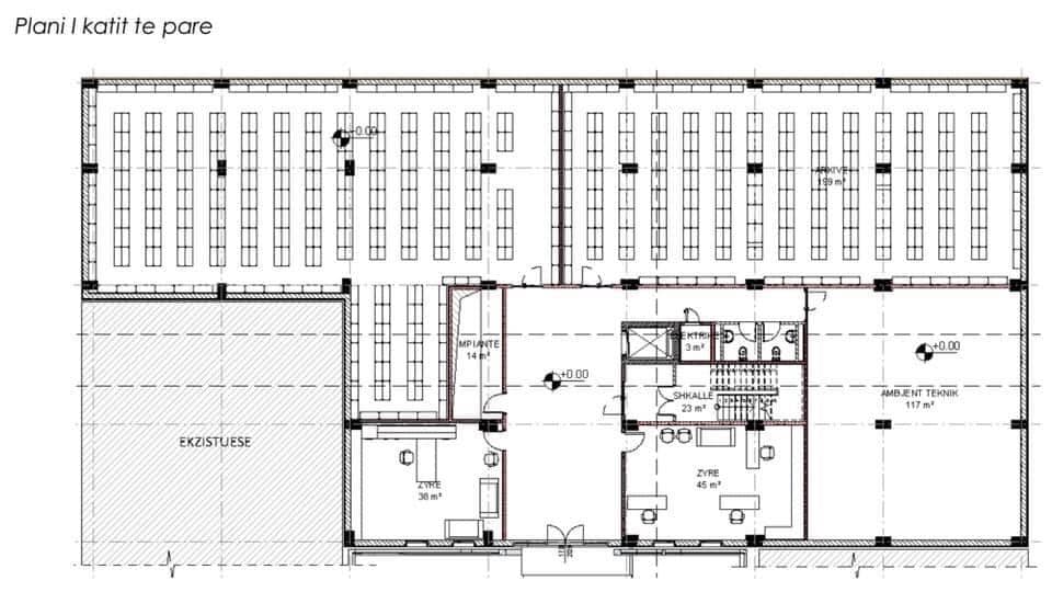
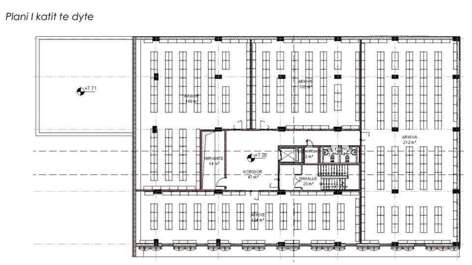
Ecim me ritëm në kantierin e rëndësishëm të ndërtimit të Arkivës së re Qendrore të DPSHTRR, në Durrës!  

Investim strategjik për zgjidhjen e problematikës së rënduar të përpunimit të dosjeve të shumta aktive dhe në rritje si numër, për shërbimet e Automotorizimit Shqiptar, të 13 drejtorive rajonale dhe të DPSHTRR qendër! Kushte dinjitoze pune, standarde e siguri! Financimi nga të ardhurat e vetë entit me vetëfinancim, rezultat i mirëadministrimit! Fund haureve, kushteve mesjetare, degradimit!

Një VEPËR për sot e për nesër, që certifikon entin tonë para partnerëve për ruajtjen dhe garantimin e arkivës fizike!

 #ArkivaQendroreDPSHTRR #MIE #ShqipëriaQëDuam #Modernizim #InvestimePublike #SiguriStandarde #TëArdhuratRiinvestohenPërShërbimin #AutomotorizimiShqiptar 


"DPSHTRR është e certifikuar sipas standardit ISO 9001:2015 për Sistemin e Menaxhimit të Cilësisë nga TÜV Rheinland.

Për të verifikuar vlefshmërinë e certifikatës klikoni këtu / skanoni kodin QR.”